Neptun Green Residence

Apartamente noi

  • Spatiu de joaca

    In apropierea complexului rezidential se va regasi un parc care va putea fi folosit de catre toti locatarii acestuia.

  • Finisaje Premium

    Toate apartamentele noastre vor beneficia de finisaje de cea mai buna calitate, produsele folosite fiind de ultima generatie.

Neptun Green Residence

Complex rezidential

Neptun Green Residence

Arhitectura moderna precum si designul interior cu materiale de calitate sunt solutia perfecta pentru locuinta dorita.

Noua ta casa in bloc nou

Locuintele noastre indeplinesc toate cerintele pentru caminul mult visat.

Giroc - Timisoara

Locatia aleasa de noi, zona Giroc, este locatia ideala pentru locuinta dumneavoastra..

Neptun Green Residence

Locul perfect pentru locuinta ideala

Puncte de interes

  • Scoli / Universitati

    1.0 Km

  • Spital

    1.5 Km

  • Statie tramvai

    1.0 Km

  • Statie autobuz

    1.5 Km

  • Banca / ATM

    0.3 Km

  • Aeroport

    0.1 Km

  • Parcuri

    0.3 Km

  • Restaurante

    0.3 Km

Neptun Green Residence

Plan bloc

  • Parter
  • Etaj 1
  • Etaj 2
  • Etaj 3

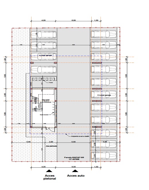
Parter

La parter gasim casa scarii, locuri de parcare, spatiu destinat pentru biciclete, spatiu pentru tomberoane, priza incarcare masini electrice, etc.

  • Suprafata totala

    521m2

  • Spatiu destinat

    bicicletelor

  • Locuri parcare

    15

  • Priza incarcare

    masini electrice

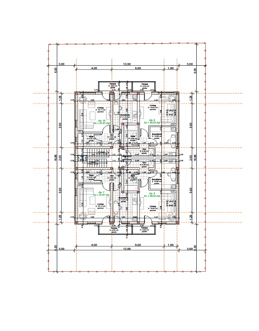
Etajul 1

Etajul 1 este compus din:

2 apartamente decomandate:

  • Suprafata

    44m2

  • Balcon

    1

  • Camere

    2

  • Baie

    1

1 apartament decomandat:

  • Suprafata

    68m2

  • Balcon

    1

  • Camere

    3

  • Baie

    1

Etajul 2

Etajul 2 este compus din:

2 apartamente decomandate:

  • Suprafata

    44m2

  • Balcon

    1

  • Camere

    2

  • Baie

    1

1 apartament decomandat:

  • Suprafata

    68m2

  • Balcon

    1

  • Camere

    3

  • Baie

    1

Etaj 3

Etajul 3 este compus din 4 apartamente decomandate:

  • Suprafata

    38m2

  • Camere

    1